Akár a Columbia típusház „nagytestvére” is lehetne.

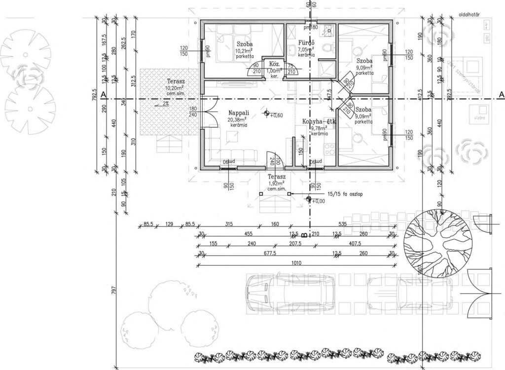
A Milánó típustervünk az alábbi helyiségeket tartalmazza:

  • Szoba_1 (10,21 m2)
  • Szoba_2 (9,09 m2)
  • Szoba_3 (9, 09 m2)
  • Fürdő (7,05 m2)
  • Nappali (20,38 m2)
  • Konyha + étkező (9,78 m2)

+ Beépített előtér (1,92 m2)

+ Nyitott terasz (10,2 m2)

A ház alapterülete:

  • nettó: 66, 60 m2
  • bruttó: 80,04 m2

Kérdése van?

Hívja kollégánkat:
+36 70 266 6680

Elérhetőségeink

Cím: 7624 Pécs, Gyümölcs u. 1.

Telefon: +36 70 266 6680

E-mail: sunsyskft@gmail.com

Nyitva tartás

Hétfő – Csütörtök: 08:00-16:00

Péntek: 08:00-15:00

Szombat – Vasárnap Zárva

Minden jog fenntartva © SunSys Kft. – Adatkezelési tájékoztató
Az oldalt készítette: Pandora Marketing