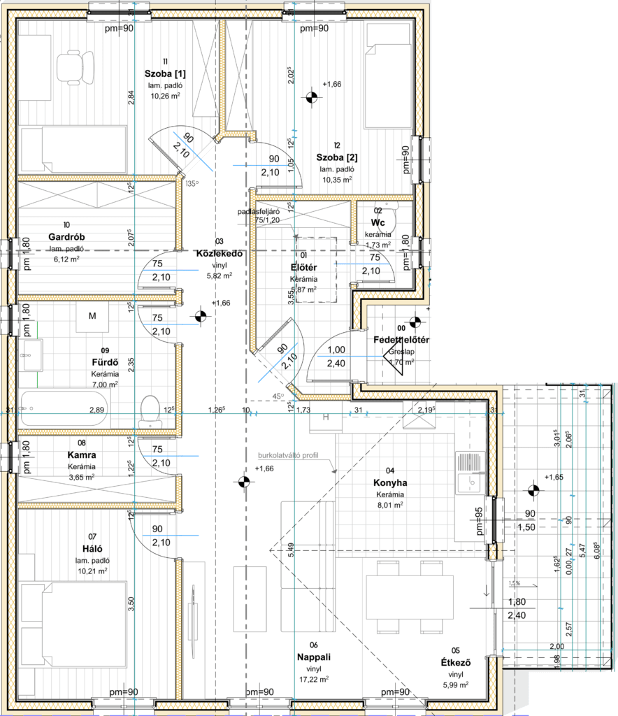
Nagy belső légtér és három tágas szoba jellemzi a Kairó típusházat – itt minden megtalálható, ami kielégíti egy nagycsalád igényeit.

A Kairó típusterv az alábbi helyiségeket tartalmazza:

  • Szoba _1 (10, 26 m2)
  • Szoba_2 (10,35 m2)
  • Szoba_3 (10,21 m2)
  • Nappali (17,22 m2)
  • Konyha (8,01 m2)
  • Étkező (5,99 m2)
  • Kamra (3,65 m2)
  • Fürdő (7 m2)
  • Különálló WC (1,73 m2)
  • Gardrób (6,12 m2)
  • Beépített előtér (5,87 m2)
  • Közlekedő (5,82 m2)

A ház alapterülete:

  • nettó 93,93 m2
  • bruttó: 109,7 m2

Kérdése van?

Hívja kollégánkat:
+36 70 266 6680

Elérhetőségeink

Cím: 7624 Pécs, Gyümölcs u. 1.

Telefon: +36 70 266 6680

E-mail: sunsyskft@gmail.com

Nyitva tartás

Hétfő – Csütörtök: 08:00-16:00

Péntek: 08:00-15:00

Szombat – Vasárnap Zárva

Minden jog fenntartva © SunSys Kft. – Adatkezelési tájékoztató
Az oldalt készítette: Pandora Marketing