A frissen összeköltözők álomháza lehet: a rendelkezésre álló egybefüggő, nagy légteret adó „konyha-étkező-nappali” biztosít ideális helyszínt a nagy buliknak, közös főzéseknek, és a partik vendégseregének.

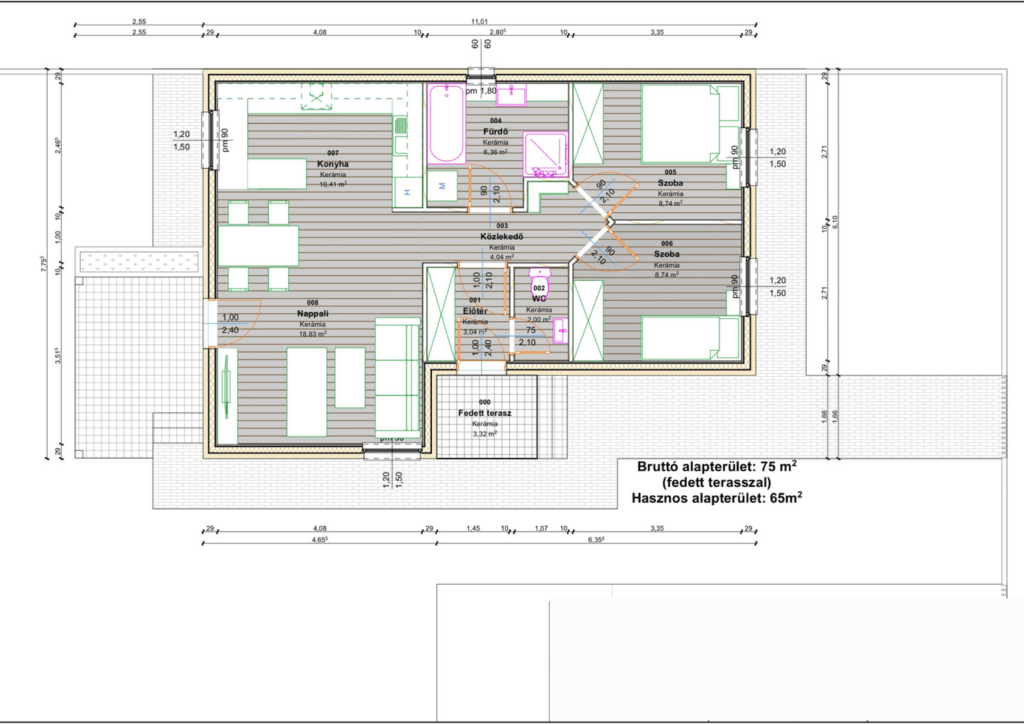
A Jolly1 típusterv az alábbi helyiségeket tartalmazza:

  • Szoba_1 (8,74 m2)
  • Szoba_2 (8,74 m2)
  • Nappali + konyha (18,83 m2 + 10,41 m2)
  • Fürdő (6,36 m2)
  • Különálló WC (2,00 m2)
  • Közlekedő (4,04 m2)
  • Beépített előtér (3,04 m2)
  • Fedett terasz 3,32 m2

A ház alapterülete:

  • nettó: 65 m2
  • bruttó: 75 m2

Kérdése van?

Hívja kollégánkat:
+36 70 266 6680

Elérhetőségeink

Cím: 7624 Pécs, Gyümölcs u. 1.

Telefon: +36 70 266 6680

E-mail: sunsyskft@gmail.com

Nyitva tartás

Hétfő – Csütörtök: 08:00-16:00

Péntek: 08:00-15:00

Szombat – Vasárnap Zárva

Minden jog fenntartva © SunSys Kft. – Adatkezelési tájékoztató
Az oldalt készítette: Pandora Marketing